Compare properties

CASADEBANCO

Spain

The Spanish company CASADEBANCO () is part of the company OLE INTERNATIONAL () and is engaged in the sale of new buildings, secondary property Owners, and real estate collateral from Spanish Banks in Spain. A distressed property is the objects that the banks take from the owners, unable to repay debt on the mortgage. The price of such objects is much lower prices of new facilities from developers. Mortgage in Spain it is possible to get up to 60% of the appraised value of the property for a period of 5 to 25 years. Bank rate in the first year 3, 5% - 5, 0%, in subsequent years the rate is reduced. Among banking entities is brand new, there is a resale in good condition and there is a very old objects that require additional investments and repair. The tax on transfer of ownership (ITP) in Spain increased to 10% of the cost. This tax is paid once when buying property. You can send us a request for the search and selection objektov, putting all options and we will select for you the options according to your wishes and financial possibilities. Our company works with the largest banks of Spain and has an exclusive database of properties, which is regularly updated and renewed. The company's representative offices in Russia are in St. Petersburg and Moscow. You can get professional advice on any subject of interest to you. We do not only provide you with items, and you can arrange a study tour to Spain, help with visas, tickets and accommodation. When buying property with our company you will be provided full legal support of transactions (opening Bank accounts, getting a number of a foreigner (NIE), preparation and translation of all documents for registration of property and obtaining a mortgage). Головной офис в Испании: Urbanizacion Villmartín, Avda. de las Brisas, nº 11, Orihuela Costa (ALICANTE) Представительство в России: г. Saint-Petersburg, 18th Line of Vasilievsky island, 29, building a, business center "Senator", office room A. 317.g. Moscow: business center "Elite holding", ul. Cook, 10, p. 1, 4th floor, office No. 6

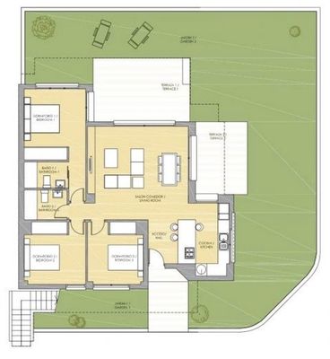
For Sale
650 000 € 1 650 € / sq.m.
  • Area: 394 sq.m.
  • Plot Area: 654 sq.m.
  • Bedrooms: 4
  • Bathrooms: 4
For Sale
219 000 € 1 750 € / sq.m.
  • Area: 125 sq.m.
  • Plot Area: 430 sq.m.
  • Bedrooms: 3
  • Bathrooms: 3
For Sale
2 100 000 € 3 280 € / sq.m.

Gorgeous villa, Altea, Comunitat Valenciana, Spain

Altea, Comunitat Valenciana, Spain Details
  • Area: 640 sq.m.
  • Plot Area: 1100 sq.m.
  • Bedrooms: 5
  • Bathrooms: 5
For Sale
1 350 000 € 3 100 € / sq.m.
  • Area: 436 sq.m.
  • Plot Area: 1200 sq.m.
  • Bedrooms: 5
  • Bathrooms: 5
For Sale
94 100 € 1 130 € / sq.m.
  • Area: 83 sq.m.
  • Bedrooms: 3
  • Bathrooms: 1
  • Rooms: 4
For Sale
119 900 € 1 250 € / sq.m.
  • Area: 96 sq.m.
  • Bedrooms: 2
  • Bathrooms: 2
  • Rooms: 3
For Sale
89 700 € 1 200 € / sq.m.
  • Area: 75 sq.m.
  • Storey: 3
  • Bedrooms: 2
  • Bathrooms: 1
For Sale
130 800 € 1 420 € / sq.m.
  • Area: 92 sq.m.
  • Bedrooms: 2
  • Bathrooms: 2
  • Rooms: 3
For Sale
333 500 € 2 140 € / sq.m.
  • Area: 156 sq.m.
  • Bedrooms: 4
  • Bathrooms: 3
  • Rooms: 5