Compare properties

Other commercial property in the big city in Slovenia, Ljubljana, 48 sq.m. For Sale

Ljubljana, Slovenia
90 000 €
1 910 € / sq.m.
Other commercial property in the big city in Slovenia, Ljubljana, 48 sq.m.
Other commercial property in the big city in Slovenia, Ljubljana, 48 sq.m.
Other commercial property in the big city in Slovenia, Ljubljana, 48 sq.m.
Other commercial property in the big city in Slovenia, Ljubljana, 48 sq.m.
Other commercial property in the big city in Slovenia, Ljubljana, 48 sq.m.
Other commercial property in the big city in Slovenia, Ljubljana, 48 sq.m.
Other commercial property in the big city in Slovenia, Ljubljana, 48 sq.m.
Other commercial property in the big city in Slovenia, Ljubljana, 48 sq.m.
Other commercial property in the big city in Slovenia, Ljubljana, 48 sq.m.
Other commercial property in the big city in Slovenia, Ljubljana, 48 sq.m.
Other commercial property in the big city in Slovenia, Ljubljana, 48 sq.m.
Other commercial property in the big city in Slovenia, Ljubljana, 48 sq.m.
  • Area: 48 sq.m.
  • Storey: 1

Description

RETURN: 8% per year

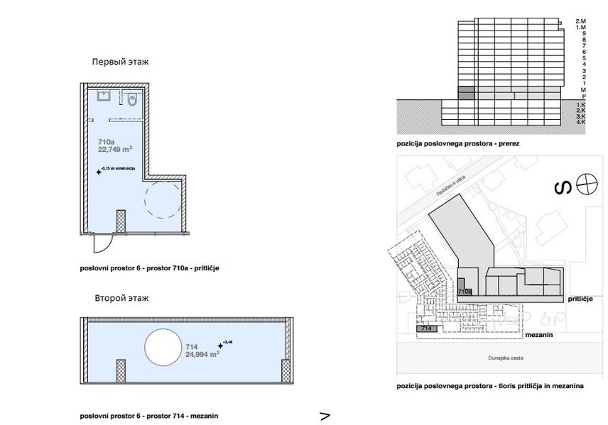
COMMERCIAL premises IN the COMPLEX ECO HOUSE

TYPE real ESTATE: TRADE AND Commerce

LOCATION: LJUBLJANA

COST: 90 000 €

floor AREA: 47,14 m2

RENTAL INCOME: 7 200 € per year / 600 € per month

RETURNS: 8% / 12 years.

MORTGAGE: 3% per year

LOCATION of PREMISES:

the Room is on the first floor of the complex Eco House. Room is in 3 construction phase, which gives excellent opportunities for a potential tenant to make all in his own plan.

DESCRIPTION of PREMISES:

the
    the
  • Residential/Commercial complex Eco Silver House is the first in Slovenia, a complex built according to the passive house.
  • the
  • Complex spends the minimum amount of energy and he has a class A1 (8 kwh/m2 of energy for heating).
  • the building has 17 floors: 3 floors underground Parking + 2 floors commercial space and 12 residential floors.

    the New complex – minimal maintenance costs and maintenance of the premises the

  • Individual counters of the calculation of heat, light, water
  • the
  • management company
  • the Premise is true for the tenant as it is located in building 3 phase and can be adapted to tenant or tenant the

  • Excellent location from motorway, and town centre

REPAIR: the Room is located in building 3 phase and the building itself was built in 2015.


the RENTAL TERMS

Based on trends in this area, the rent for similar premises up to 13 Euro/m2. In addition to this lease, the tenant paid all the expenses of maintaining the premises. In case the lessee to grant a delay of payment of rent, the investment in equipment is not needed.

PLEASE NOTE!

Calculation of recoupment made on the basis of the minimum lease payments. We also do not take into account a potential discount on the purchase for a real customer.

by the Way, this object can be purchase a mortgage from 3% a year.

Show More

Details

  • Location types: in the big city

Features

Location

Request object's relevance