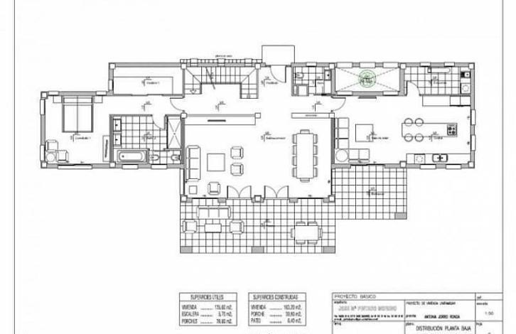
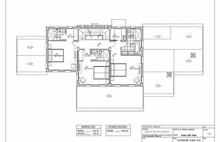
Предлагаем проект прекрасной виллы для строительства на севере Коста Бланка!Вилла с удобной, функциональной планировкой, включает крытый бассейн, открытый бассейн, тренажерный зал, бар.Будет построена на участке площадью 10 500 м2.Есть три разные ценовые категории.- Участок, 70% проекта, лицензия на строительство, 3 этажа и крытый бассейн - 890,000 евро.- Участок, 100% проекта, лицензия на работы и полностью готовый объект - 1 500 000 евро.Этот проект вы можете построить с участием нашей компании. На строительном рынке Испании, компания осуществляет функции Генерального подрядчика по строительству, реконструкции и инженерному обеспечению жилых зданий в Испании на побережье Коста Бланка.Осуществляя деятельность с 2005 года, заняла лучшие позиции на испанском рынке строительного подряда сегмента «DeLuxe». Клиентам предоставляется широкий спектр работ, от разработки архитектурной концепции до сдачи в эксплуатацию завершенного объекта строительства.Основная стратегическая цель компании - создание высококачественного продукта и оказание помощи Клиентам компании по вопросам строительных и архитектурных услуг.Для Клиентов проводится полный комплекс проектно-изыскательных работ, которые гарантируют становление надежных и красивых домов, укомплектованных современным инженерным оборудованием и коммуникациями от лучших мировых производителей.На всех этапах проектных работ, Клиентам предоставляется полная информация, что позволяет минимизировать стоимость того или иного проекта, а также значительно уменьшить сроки проектирования строительных работ.Команда сотрудников и специалистов уделяет огромное внимание качеству инженерных систем и осуществляет проектирование, поставку, а также монтаж различных видов инженерных коммуникаций, таких как: - водоснабжение и канализация- теплоснабжение- электроснабжение- системы кондиционирования и вентиляции- видеонаблюдение- охранные системы- системы телекоммуникаций- системы пожарных сигнализаций- комплексные автоматизации SMART HOUSE Опыт компании позволяет добиться эффективного взаимодействия между всеми участниками строительного процесса. Осуществляются следующие виды строительства жилых домов: - кирпичное строительство вилл класса «DeLuxe»- блочное строительство вилл- монолитное строительство вилл Предлагаем Вам как индивидуальные проекты, разработанные и согласованные с учетом ваших пожелай, так и готовые типовые проекты от лучших архитекторов Испании на побережье Коста Бланка. Максимальный срок строительства виллы вашей мечты на побережье Коста Бланка, при участии нашей компании составит один год с момента согласования условий и подписания Договора. Цена за 1 квадратный метр строительства виллы составит от 1200 евро до 1500 евро, включая всю отделку, в зависимости от стоимости выбранных Вами материалов. Учитывая пожелания наших клиентов, с 01. 01. 2013 года вводится ряд дополнительных услуг в области Дизайна интерьеров с индивидуальным подходом к каждому проекту, а также ландшафтного дизайна и проектирования. Подробную информацию о порядке работы с клиентами компании вы можете уточнить у наших специалистов. Мы с нетерпением ждем от Вас звонков и заявок для реализации Вашей мечты под названием «Вилла у моря в Испании»
Показать Больше