Compare properties

Villa in Republic of Cyprus, 859 sq.m. For Sale

Republic of Cyprus
2 990 000 €
3 480 € / sq.m.
Villa in Republic of Cyprus, 859 sq.m.
Villa in Republic of Cyprus, 859 sq.m.
Villa in Republic of Cyprus, 859 sq.m.
Villa in Republic of Cyprus, 859 sq.m.
Villa in Republic of Cyprus, 859 sq.m.
Villa in Republic of Cyprus, 859 sq.m.
Villa in Republic of Cyprus, 859 sq.m.
Villa in Republic of Cyprus, 859 sq.m.
Villa in Republic of Cyprus, 859 sq.m.
Villa in Republic of Cyprus, 859 sq.m.
Villa in Republic of Cyprus, 859 sq.m.
Villa in Republic of Cyprus, 859 sq.m.
Villa in Republic of Cyprus, 859 sq.m.
Villa in Republic of Cyprus, 859 sq.m.
Villa in Republic of Cyprus, 859 sq.m.
  • Area: 859 sq.m.
  • Storeys count: 1
  • Rooms: 1

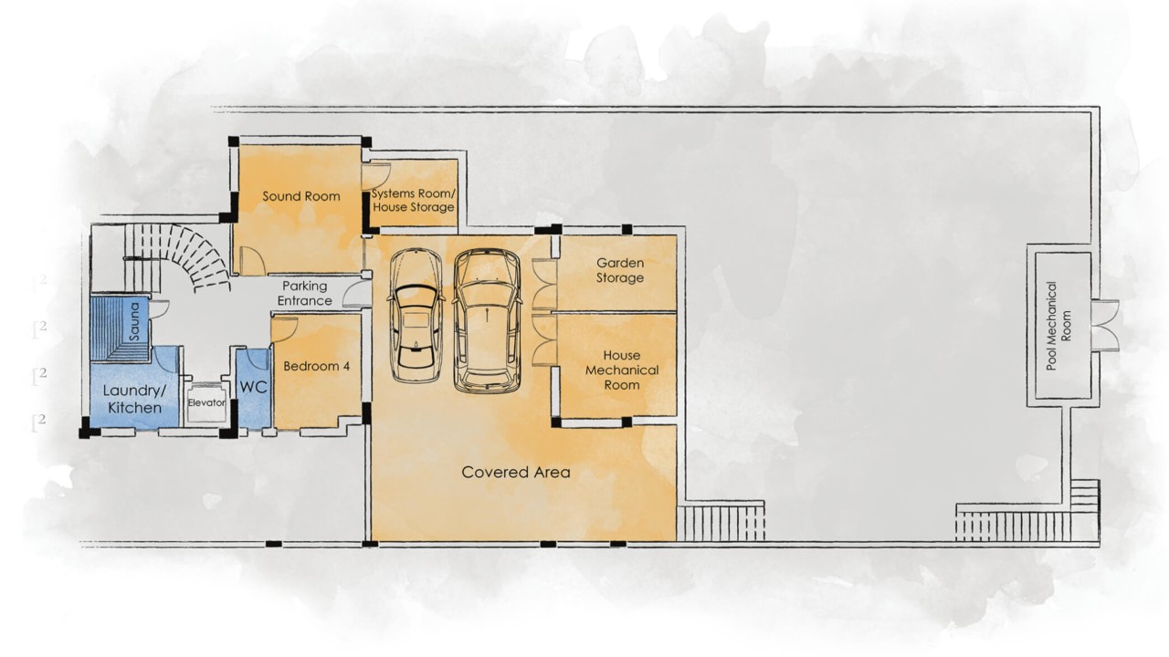
Description

In this complex there are three luxury Villas:Luxury Villa Sansy – a real jewel for those who appreciate luxury and aristocratic style. This split-level Villa with a zero floor and a loft with picturesque views of the Paphos town. Hope Villa, named after the blue diamond in the Hole. The eponymous Villa – a true blue dream of everyone who wants to live by the sea. Villa Hope – more than can be expected. There are hopes and dreams are realized. Sahil Villa with a modern architectural style, built and equipped with the latest technology – is the ideal place for living and recreation.Description of the Villas:ground floor Villas Sansy, Hope, Nizami are facilities for comfortable rest and relaxation. It's a home theater with full sound isolation, a cozy luxurious bedroom, a modern sauna and shower. Located next to the bedroom bathroom, lift and stairs to upper floors. Provided technical room, Laundry, storage and Parking for two cars.Control system of water supply. On the ground floor: kitchen, dining room and spacious living room connected to each other smoothly and harmoniously, thanks to panoramic Windows, the spaces filled with light. Jacuzzi, large swimming pool with purified sea water, covered verandas and open terraces, lounge with garden access – all of this includes the first floor. Architecture of Villas Sansy, Hope, Nizami – a model of modern comfort. The pool and Jacuzzi 79.10 sq. m Covered verandas 50.70 sqm On the first floor there are three luxurious bedrooms include bathrooms. The design and interior of bedroom & ndash; the epitome of comfort and style at the highest level. The master bedroom has access to a Jacuzzi, a kitchen, a dressing room and a covered veranda with gorgeous panoramic views. For total relaxation and finding inner peace, the perfect place is the attic with verandas and a patio with views of the sea with its magical sunrises and sunsets.

Show More

Details

  • To the sea: 100 meters
  • To historical city center: 15000 meters
  • To the airport: 15000 meters

Location

Request object's relevance