Compare properties

Apartment in the suburbs in Italy, Lazio, 200 sq.m. For Sale

Lazio, Italy
1 526 500 €
7 630 € / sq.m.
Apartment in the suburbs in Italy, Lazio, 200 sq.m.
Apartment in the suburbs in Italy, Lazio, 200 sq.m.
Apartment in the suburbs in Italy, Lazio, 200 sq.m.
Apartment in the suburbs in Italy, Lazio, 200 sq.m.
Apartment in the suburbs in Italy, Lazio, 200 sq.m.
  • Area: 200 sq.m.
  • Bedrooms: 3

Description

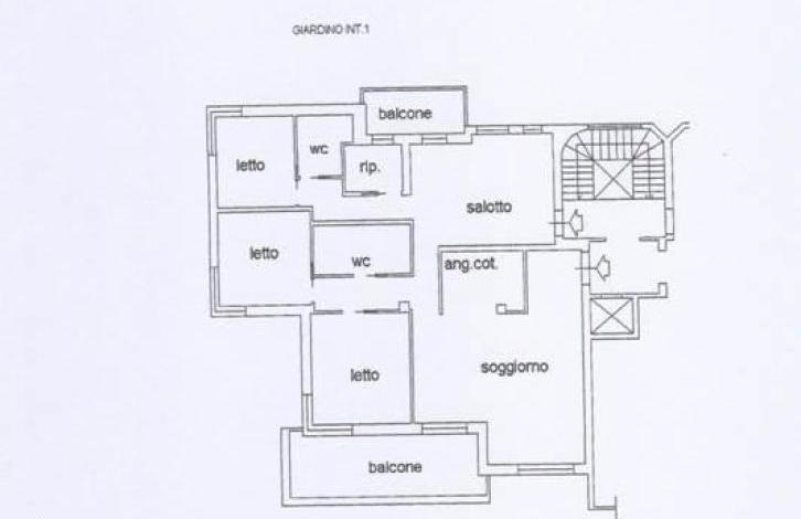
excellent panoramic apartment in Rome in a prestigious and leafy residential area of Cortina di Ampezzo with developed infrastructure, town centre 20 min drive. The apartment is located in a fenced residential complex with a Concierge on the third floor. Total area 200 sq m, terrace 25 sqm. M.

the Apartment was recently renovated using materials of the highest quality. The terrace offers a beautiful panoramic view of Rome and the mountains. The apartment consists of hall, spacious lounge, fully equipped kitchen, 3 bedrooms, 3 bathrooms, service area. Underground garage for 3 cars. On the ground floor, an apartment for servants.

Show More

Details

  • Location types: in the suburbs

Location

Request object's relevance