Compare properties

Land plot at the seaside in Latvia, Jurmala, Jaundubulti For Sale

Jaundubulti, Jurmala, Latvia
635 400 €
Land plot at the seaside in Latvia, Jurmala, Jaundubulti
Land plot at the seaside in Latvia, Jurmala, Jaundubulti
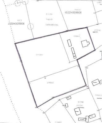
  • Plot Area: 2888 sq.m.

Description

Юрмала, Меллужи, ул. Капу 47. Продается земельный участок в дюнной зоне, площадью 2888 кв.м. Согласно действующей планировке города Юрмалы, статус территории определен как территория под строительство частного дома или бизнес учреждения (коммерческого характера). На земельный участок разработана и согласована детальная планировка. Под строительство дома максимальная плотность застройки составляет – 11%. Под строительство объекта коммерческого характера максимальная плотность застройки – 15%. Подведены все коммуникации – газ, вода, канализация и электричество. На земельном участке есть дом, в плохом техническом состоянии.

Show More

Details

  • Location types: at the seaside

Location

Request object's relevance

Similar Properties