Compare properties
Compare
Reset
Nothing found
Residential
Commercial
Land
Agencies
Articles
0
RU
|
EN
Main
Spain
Catalunya
La Platja de Calafell
Any Properties
Apartments, penthouses
Houses, villas, chalets
Bungalow
Townhouses
Mansions, castles, patrimonies
Other
Residential/rentals
Industrial real estate
Retail property
Office property
Investment projects
Other commercial property
Land plots
Price Range
€
$
₽
Price present
Area Range
Plot Area Range
Construction phase
New building
Off plan
Resale
Location
in the big city
in the mountains
in the village
at the SPA Resort
by the lake
in the forest
at the seaside
in the suburbs
in the city center
at the first line of the sea / lake
at the second line of the sea / lake
Redevelopment
Real Estate of bank
From builder
With elevator
With parking
In credit
In mortgage
With a balcony
Sauna
Search
Real Estate in Spain
Show map
Sort by:
Default Order
Price Low to High
Price High to Low
Found 28986 listings:
For Sale
365 000 €
2 280 € / sq.m.
Gorgeous apartment, Calp, Comunitat Valenciana, Spain
Calp, Comunitat Valenciana, Spain
Details
Area:
160 sq.m.
Bedrooms:
4
Bathrooms:
3
For Sale
180 000 €
1 800 € / sq.m.
Comfortable apartment in the big city, Comunitat Valenciana, Spain
Comunitat Valenciana, Spain
Details
Area:
100 sq.m.
Bedrooms:
1
Bathrooms:
2
For Sale
1 900 000 €
6 030 € / sq.m.
Shop Ibiza, Balearic Islands, Spain
Ibiza, Balearic Islands, Spain
Details
For Sale
30 000 €
1 000 € / sq.m.
Cozy apartment at the seaside, Torrevieja, Comunitat Valenciana, Spain
Torrevieja, Comunitat Valenciana, Spain
Details
Area:
30 sq.m.
Storey:
3
Bathrooms:
1
Rooms:
1
For Sale
90 000 €
2 370 € / sq.m.
Cozy apartment at the seaside, Andalucia, Spain
Andalucia, Spain
Details
Area:
38 sq.m.
Bathrooms:
1
Rooms:
1
For Sale
124 500 €
1 250 € / sq.m.
Comfortable four-story apartment at the second line of the sea / lake, Valsequillo de Gran Canaria, Canary Islands, Spain
Valsequillo de Gran Canaria, Canary Islands, Spain
Details
Area:
100 sq.m.
Storey:
3
Storeys count:
4
Bedrooms:
3
For Sale
582 500 €
2 830 € / sq.m.
Magnificent two-story house in the suburbs, Valsequillo de Gran Canaria, Canary Islands, Spain
Valsequillo de Gran Canaria, Canary Islands, Spain
Details
Area:
206 sq.m.
Plot Area:
31000 sq.m.
Storeys count:
2
Bedrooms:
3
For Sale
124 300 €
3 110 € / sq.m.
Cozy apartment at the first line of the sea / lake, Santa Cruz de Tenerife, Canary Islands, Spain
Santa Cruz de Tenerife, Canary Islands, Spain
Details
Area:
40 sq.m.
Storey:
12
Bedrooms:
1
For Sale
285 200 €
2 110 € / sq.m.
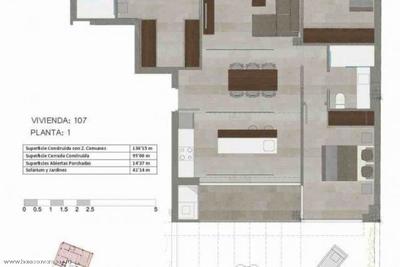
Spacious three-story townhouse in the suburbs, Valsequillo de Gran Canaria, Canary Islands, Spain
Valsequillo de Gran Canaria, Canary Islands, Spain
Details
Area:
135 sq.m.
Plot Area:
209 sq.m.
Storeys count:
3
Bedrooms:
4
For Sale
1 745 800 €
6 300 € / sq.m.
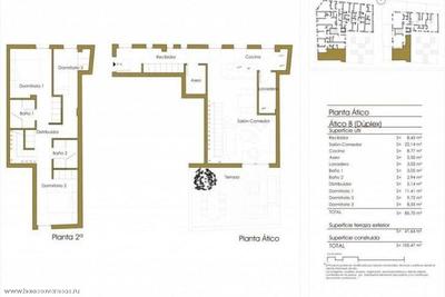
Fabulous townhouse in the city center, Valsequillo de Gran Canaria, Canary Islands, Spain
Valsequillo de Gran Canaria, Canary Islands, Spain
Details
Area:
277 sq.m.
For Sale
168 800 €
4 330 € / sq.m.
Cozy apartment at the first line of the sea / lake, Santa Cruz de Tenerife, Canary Islands, Spain
Santa Cruz de Tenerife, Canary Islands, Spain
Details
Area:
39 sq.m.
For Sale
366 600 €
3 060 € / sq.m.
Comfortable apartment in the city center, Valsequillo de Gran Canaria, Canary Islands, Spain
Valsequillo de Gran Canaria, Canary Islands, Spain
Details
Area:
120 sq.m.
Storey:
2
Bedrooms:
4
For Sale
112 300 €
1 170 € / sq.m.
Comfortable apartment in the suburbs, Valsequillo de Gran Canaria, Canary Islands, Spain
Valsequillo de Gran Canaria, Canary Islands, Spain
Details
Area:
96 sq.m.
For Sale
872 900 €
3 910 € / sq.m.
Magnificent two-story house in the suburbs, Valsequillo de Gran Canaria, Canary Islands, Spain
Valsequillo de Gran Canaria, Canary Islands, Spain
Details
Area:
223 sq.m.
Plot Area:
14000 sq.m.
Storeys count:
2
Bedrooms:
4
For Sale
197 900 €
2 250 € / sq.m.
Comfortable apartment in the city center, Valsequillo de Gran Canaria, Canary Islands, Spain
Valsequillo de Gran Canaria, Canary Islands, Spain
Details
Area:
88 sq.m.
Bedrooms:
1
For Sale
34 300 €
1 140 € / sq.m.
Cozy apartment in the city center, Alicante, Comunitat Valenciana, Spain
Alicante, Comunitat Valenciana, Spain
Details
Area:
30 sq.m.
Storey:
2
Storeys count:
8
For Sale
50 100 €
1 670 € / sq.m.
Cozy five-story apartment at the second line of the sea / lake, Alicante, Comunitat Valenciana, Spain
Alicante, Comunitat Valenciana, Spain
Details
Area:
30 sq.m.
Storey:
4
Storeys count:
5
For Sale
37 300 €
1 240 € / sq.m.
Cozy five-story apartment in the city center, Alicante, Comunitat Valenciana, Spain
Alicante, Comunitat Valenciana, Spain
Details
Area:
30 sq.m.
Storey:
2
Storeys count:
5
For Sale
46 500 €
1 860 € / sq.m.
Cozy five-story apartment at the second line of the sea / lake, Alicante, Comunitat Valenciana, Spain
Alicante, Comunitat Valenciana, Spain
Details
Area:
25 sq.m.
Storey:
2
Storeys count:
5
For Sale
163 200 €
2 040 € / sq.m.
Comfortable apartment, Alicante, Comunitat Valenciana, Spain
Alicante, Comunitat Valenciana, Spain
Details
Area:
80 sq.m.
Plot Area:
3 sq.m.
Bedrooms:
2
1
...
10
11
12
...
1450
Previous
Next
x
We will help you to find property
Whatsapp
Viber
Telegram
I agree with
terms
of personal data processing and privacy
policy
on Propimo.com
Enable Scrolling
Prev
Next
Real estate in Spain by criteria
Flats
Apartments (5104)
Two rooms apartments (56)
Flats (7540)
Apartments in new-built houses (7540)
Secondary real estate apartments (3)
Apartments from the developer (22)
Apartments from the developer (22)
One-room apartment (13)
Three-rooms apartment (248)
Real estate on the shore
Apartments by the sea (836)
Villas by the sea (823)
Houses by the sea (312)
Flats by the sea (446)
Real estate by the sea (2723)
Residential houses
Villas (9936)
House (3358)
Property from the developer (5)
New buildings (3358)
Townhouses (1346)
Investment projects
Vineyard (1)
Affordable business (1)
Profitable houses (34)
Cafe (restaurants) (109)
Buy a business (2)
Shop (46)
Hotels (142)
Offices (15)
New buildings
Two-room apartment in residential complex (89)
One-room apartment in residential complex (13)
Studio in residential complex (7540)
Three-room apartment in residential complex (311)
Real estate for mortgages
Home mortgage (61)
Apartments for mortgages (80)
Real estate on credit (230)
Elite real estates
Castles (1)
Castels on the map (1)
Elite real estate (14424)
Elite houses (2259)
Luxury apartments (141)
Cost in rubles
The cost of real estate in rubles (28986)
The cost of apartments in rubles (7540)
Prices for houses and villas in rubles (3358)
Cheap property
Cheap real estate (4580)
Affordable houses (316)
Affordable land (4580)
Affordable apartments (flats) (4974)
Cheap studios (388)
One-room apartment (4)
Affordable townhouses (140)
Other
Banking real estate (149)
Bungalow (203)
Real estate on the map (28986)
Property price (28986)
Studio (7540)